top of page
241220 - DO dakrand 2.png

VL42

LOCATION

FUNCTION

SIZE

Laren

Private housing 

610 m²  

The assignment called for a spacious family residence connected to an expansive garden. The design prioritizes harmony with the natural surroundings by incorporating extensive transparent facades, providing unobstructed views of the garden from every part of the house. To balance the structure’s large volume, the facade and roof edges are tapered with thin profiles, contributing to the building’s overall lightness. The upper facade features cladding in dark ash wood with matching wooden roof edges, while the lower facade is finished in textured concrete, complemented by oak window frames and roof detailing.

Ground floor

250902 - Blaricum WEBSITE-02 VL42.png

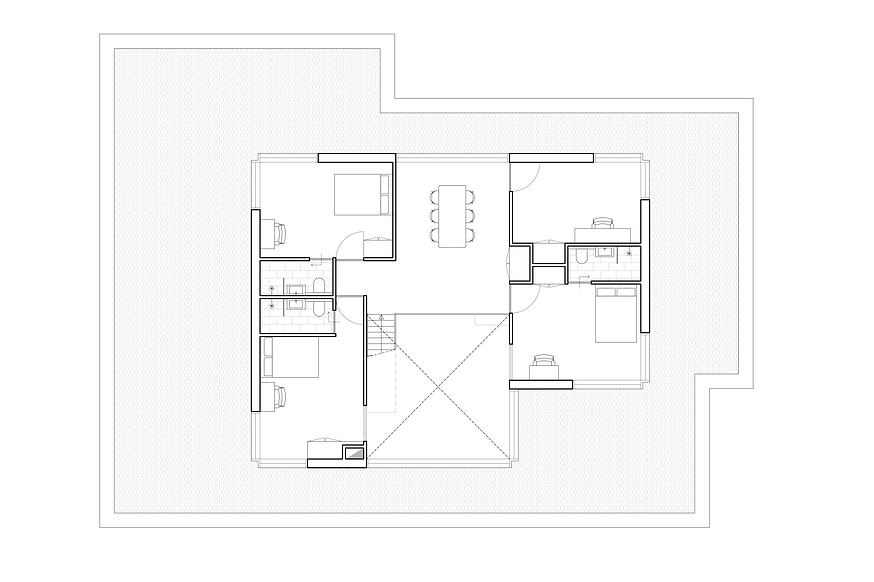
First floor

250902 - Blaricum WEBSITE-03 VL42 2.png
241220 - DO dakrand 3.png
241220 - DO dakrand 1.png
241017 - WK 3.png
241017 - WK 2.png
241017 - WK BINNENKOMST.png
241017 - BK.png
241017 - SK STAAL.png
bottom of page