
VILLA DE MAN
Aerdenhout
LOCATION
Private housing
FUNCTION
500 m²
SIZE
A2STUDIO
RENDERS
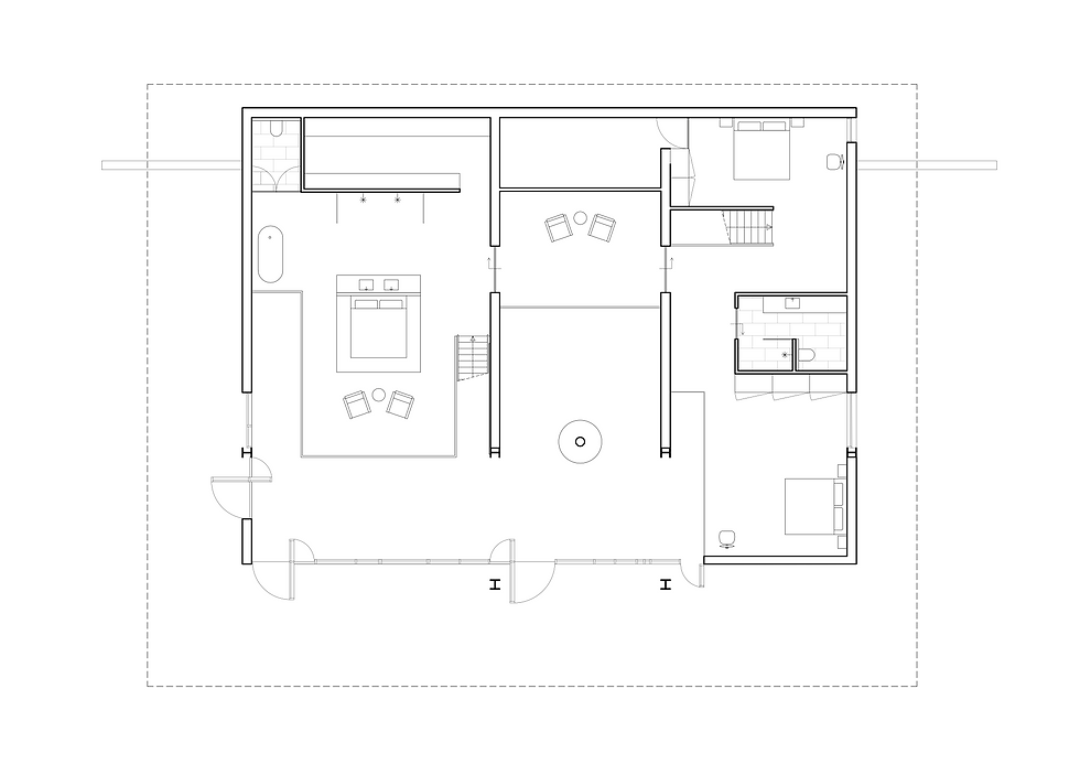
Overlooking a dune landscape in the western part of the Netherlands, this design for a villa makes optimal use of the views of its surroundings. Private spaces in the secluded back of the villa gradually open up to the communal spaces. These spaces are connected with each other along the mostly glass south facade, which is covered by a partial glass ceiling. The glass ceiling progresses onto the big overhang, providing shade and seclusion for the large terrace in front of the villa. A progression of spaces is formed from intimate spaces on the north side to open and connected areas on the south side. The design accommodates different atmospheres to cater to various living functions.
Ground floor


First floor



